Una operación urbanística propiciará un nuevo pabellón en Jaén

El Ayuntamiento “venderá” el terreno, localizado entre La Salobreja y el Recinto Ferial, a Diputación por 7,7 millones

28 feb 2026 / 09:04 H.
Ver comentarios

Operación urbanística redonda. El Ayuntamiento de Jaén construirá un nuevo pabellón deportivo en la capital, entre La Salobreja y el Recinto Ferial, un edificio que nace con la pretensión de dar respuesta a los clubes y a la importante demanda que genera el deporte base en distintas disciplinas. Ya está prácticamente terminado el proyecto básico y el objetivo es empezar pronto con la licitación y con las obras para que se encuentre totalmente preparado para la temporada 2027-2028.

El alcalde, Julio Millán, cifra en más de cuatro millones de euros el coste de una infraestructura que cumplirá con un doble objetivo: el deportivo y el cultural. “Los que tenemos actualmente, todos hechos bajo el paraguas del Partido Socialista por cierto —Las Fuentezuelas, La Salobreja, Santa Isabel o Bulevar—, no tienen nivel suficiente”, justifica el dirigente, por lo que considera “necesario” un equipamiento adaptado a las exigencias actuales y que, además, sirva de espacio escénico. En un primero momento, el Ayuntamiento de la ciudad buscó suelo en Vaciacostales, pero los estudios geotécnicos lo descartaron. El emplazamiento definitivo será muy cerca del Recinto Ferial. “Tenemos la posibilidad de desarrollarlo, el proyecto está muy avanzado e, incluso, contamos ya con previsión de financiación”, añade.

¿Cómo afrontarán un gasto tan importante cuantitativa y cualitativamente? A través de una mutación demanial. Está recogido en los presupuestos municipales. Se trata de la enajenación de los terrenos de la Institución Ferial, una propiedad municipal que será “vendida” a la Diputación por 7,7 millones de euros. Ocurrió algo parecido con el Pabellón Olivo Arena. El suelo fue cedido, en su día, por parte del Ayuntamiento de Jaén al Consorcio para el Desarrollo de la Provincia y, para proceder a su construcción, tuvo que revertir al Ayuntamiento para que, a su vez, pudiera cederlo a la Diputación Provincial y comenzar, así, un procedimiento de mutación demanial. Ocurrió en el año 2018.

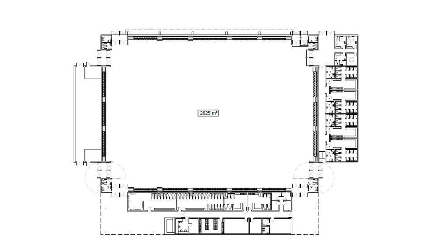
<i>Plano del pabellón con los espectadores de pie. </i>
Plano del pabellón con los espectadores de pie.

La financiación permitirá al equipo de Gobierno, que buscará el respaldo de la oposición en un pleno municipal en marzo, avanzar en el desarrollo urbanístico con infraestructuras acordes con una capital de provincia. El pabellón deportivo, trazado en los planos que acompañan a este texto, tendrá un aforo de 2.000 personas y, de pie, 6.000.

¿Cuál es el modelo? Julio Millán, junto con el concejal del área Económica, Francisco Lechuga, visitó recientemente, acompañado del alcalde de Manzanares, Julián Nieva, y ediles y técnicos de la localidad manchega, el Manzanares Arena, un pabellón con 1.800 plazas que encaja con las características que el Consistorio baraja para la capital.

Se trata de unas instalaciones de reciente creación en las que, además, juega el equipo de fútbol sala local, el Quesos Hidalgo Manzanares FS, de la Primera División de este deporte. “Sabemos que hay una importante demanda de clubes de un equipamiento que les dé respuesta, clubes que en deportes como el baloncesto, el balonmano o el fútbol sala, que complemente la oferta que se brinda en el Olivo Arena pero también para disponer de un pabellón más adaptado a las necesidades actuales, requerimientos que no cumplen los que tenemos en la actualidad como el de La Salobreja”. El alcalde tiene claro su modelo de ciudad.

Advertisement
Jaén